Top.Mail.Ru

Перовская ул., д. 34, к. 1

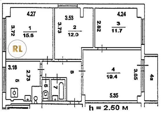
База каталог, Кол-во подъездов: 1, 1-МГ-601, Москва, Перово, Пассажирский лифт: 1, От метро: 890, Восточный, да, Наименьшее кол-во этажей: 16, Наибольшее кол-во этажей: 16, Перово, Кол-во помещений: 112, Кол-во нежилых помещений: 1, Год ввода в эксплуатацию: 1969, 4-комн, Кол-во жилых помещений: 111, дом 34, корпус 1, нет, да, да, да, да, да, Грузовых лифтов: 1, Год постройки: 1969, Перовская улица, 37.776799, 55.745818
Свяжитесь со мной на счет цены
10 дн.
V55S745818L37S776799V

На карте


Условия сделки

Источник


Старт продаж

Возможно заинтересует