Top.Mail.Ru

улица Молостовых, д. 16, к. 1

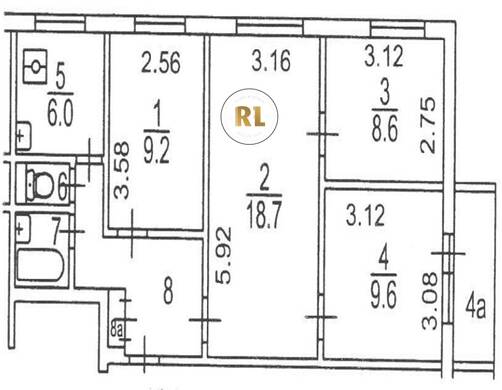
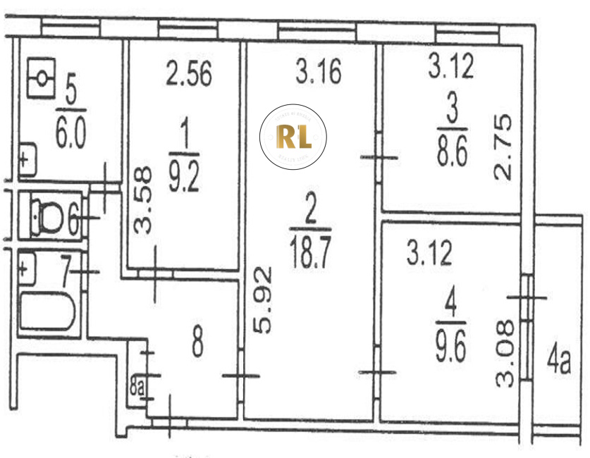
База каталог, Кол-во подъездов: 6, Отсутствует, II-49-06, Москва, Ивановское, Площадь парковки: 0, Пассажирский лифт: 6, От метро: 990, Восточный, нет, Наименьшее кол-во этажей: 9, Наибольшее кол-во этажей: 9, Новогиреево, Кол-во помещений: 212, Кол-во нежилых помещений: 1, Год ввода в эксплуатацию: 1973, 4-комн, Кол-во жилых помещений: 211, Не присвоен, дом 16, корпус 1, нет, да, да, да, да, да, Отсутствует, Грузовых лифтов: 0, Год постройки: 1973, улица Молостовых, 37.831371, 55.751898
Свяжитесь со мной на счет цены
10 дн.
V55S751898L37S831371V

На карте


Условия сделки

Источник


Старт продаж

Возможно заинтересует