Top.Mail.Ru

Красноказарменная ул., д. 12, к. 4

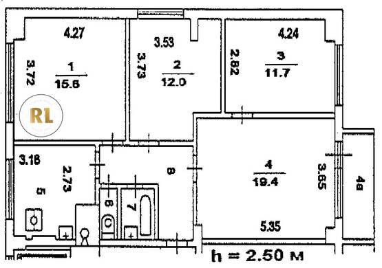
База каталог, Кол-во подъездов: 4, Имеется, 1-МГ-601, Москва, Лефортово, Площадь парковки: 0, Пассажирский лифт: 0, От метро: 1360, Юго-Восточный, нет, Наименьшее кол-во этажей: 4, Наибольшее кол-во этажей: 4, Лефортово, Кол-во помещений: 32, Кол-во нежилых помещений: 0, Год ввода в эксплуатацию: 1931, 4-комн, Кол-во жилых помещений: 32, А, дом 12, корпус 4, нет, да, да, да, да, нет, Имеется, Грузовых лифтов: 0, Год постройки: 1931, Красноказарменная улица, 37.697981, 55.755388
Свяжитесь со мной на счет цены
10 дн.
V55S755388L37S697981V

На карте


Условия сделки

Источник


Старт продаж

Возможно заинтересует