Top.Mail.Ru

улица Молостовых, д. 6, к. 4

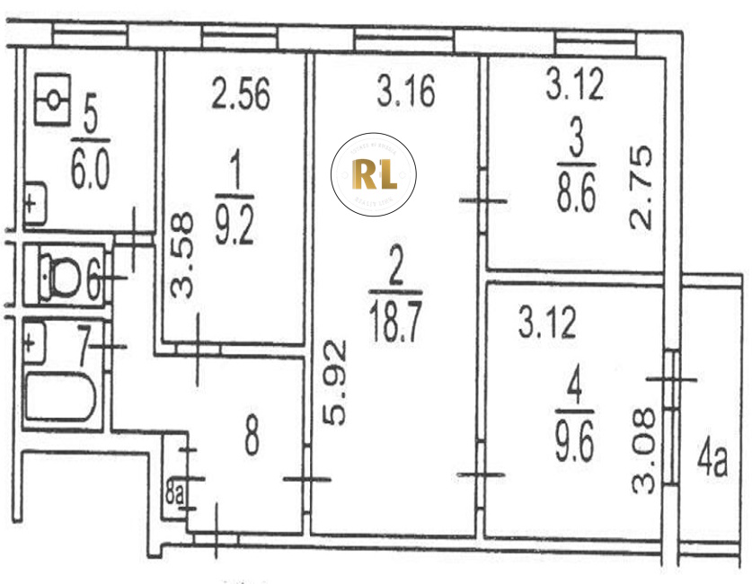
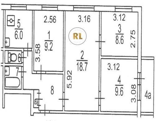
База каталог, Кол-во подъездов: 10, Имеется, II-49-06, Москва, Ивановское, Площадь парковки: 0, Пассажирский лифт: 10, От метро: 1530, Восточный, нет, Наименьшее кол-во этажей: 1, Наибольшее кол-во этажей: 9, Новогиреево, Кол-во помещений: 358, Кол-во нежилых помещений: 0, Год ввода в эксплуатацию: 1973, 4-комн, Кол-во жилых помещений: 358, Не присвоен, дом 6, корпус 4, нет, да, да, да, да, нет, Имеется, Грузовых лифтов: 0, Год постройки: 1973, улица Молостовых, 37.828524, 55.762449
Свяжитесь со мной на счет цены
10 дн.
V55S762449L37S828524V

На карте


Условия сделки

Источник


Старт продаж

Возможно заинтересует