Top.Mail.Ru

улица Молостовых, д. 8, к. 1

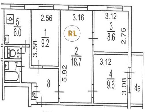
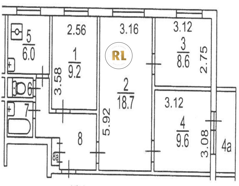
База каталог, Кол-во подъездов: 4, Имеется, II-49Д, Москва, Ивановское, Площадь парковки: 0, Пассажирский лифт: 4, От метро: 1760, Восточный, нет, Наименьшее кол-во этажей: 1, Наибольшее кол-во этажей: 9, Новогиреево, Кол-во помещений: 144, Кол-во нежилых помещений: 0, Год ввода в эксплуатацию: 1973, 4-комн, Кол-во жилых помещений: 144, Не присвоен, дом 8, корпус 1, нет, да, да, да, нет, нет, Имеется, Грузовых лифтов: 0, Год постройки: 1973, улица Молостовых, 37.830033, 55.763083
Свяжитесь со мной на счет цены
10 дн.
V55S763083L37S830033V

На карте


Условия сделки

Источник


Старт продаж

Возможно заинтересует