Top.Mail.Ru

улица Молостовых, д. 6, к. 1

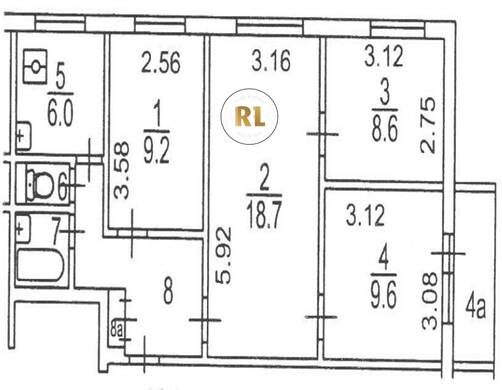
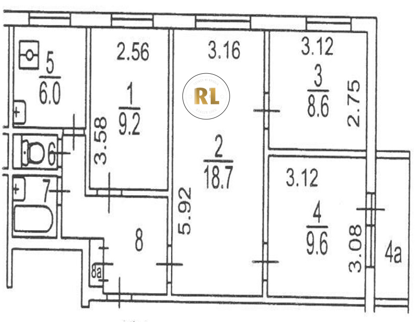
База каталог, Кол-во подъездов: 4, II-49Д, Москва, Ивановское, Площадь парковки: 0, Пассажирский лифт: 4, От метро: 1770, Восточный, нет, Наименьшее кол-во этажей: 9, Наибольшее кол-во этажей: 9, Новогиреево, Кол-во помещений: 144, Кол-во нежилых помещений: 1, Год ввода в эксплуатацию: 1973, 4-комн, Кол-во жилых помещений: 143, Не присвоен, дом 6, корпус 1, нет, да, да, да, нет, нет, Отсутствует, Грузовых лифтов: 0, Год постройки: 1973, улица Молостовых, 37.826853, 55.764141
Свяжитесь со мной на счет цены
10 дн.
V55S764141L37S826853V

На карте


Условия сделки

Источник


Старт продаж

Возможно заинтересует