Top.Mail.Ru

улица Молостовых, д. 4, к. 3

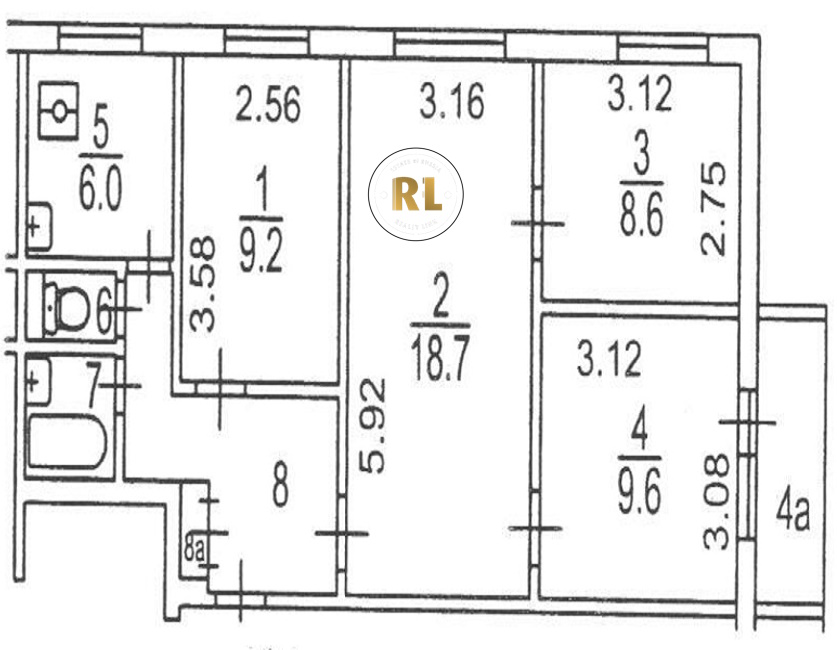
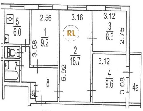
База каталог, Кол-во подъездов: 2, Имеется, II-49Д, Москва, Ивановское, Площадь парковки: 0, Пассажирский лифт: 2, От метро: 1900, Восточный, нет, Наименьшее кол-во этажей: 1, Наибольшее кол-во этажей: 9, Новогиреево, Кол-во помещений: 72, Кол-во нежилых помещений: 0, Год ввода в эксплуатацию: 1973, 4-комн, Кол-во жилых помещений: 72, Не присвоен, дом 4, корпус 3, нет, да, да, да, нет, нет, Имеется, Грузовых лифтов: 0, Год постройки: 1973, улица Молостовых, 37.831614, 55.764531
Свяжитесь со мной на счет цены
10 дн.
V55S764531L37S831614V

На карте


Условия сделки

Источник


Старт продаж

Возможно заинтересует