Top.Mail.Ru

улица Молостовых, д. 4, к. 2

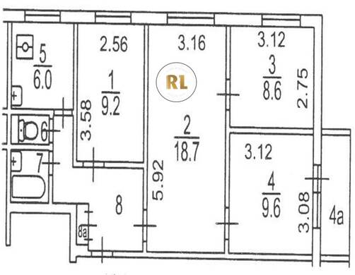
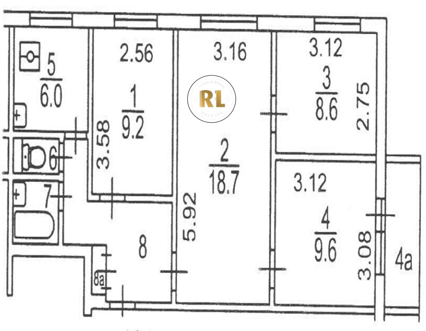
База каталог, Кол-во подъездов: 2, Имеется, II-49Д, Москва, Ивановское, Площадь парковки: 0, Пассажирский лифт: 2, От метро: 1950, Восточный, нет, Наименьшее кол-во этажей: 1, Наибольшее кол-во этажей: 9, Новогиреево, Кол-во помещений: 72, Кол-во нежилых помещений: 1, Год ввода в эксплуатацию: 1973, 4-комн, Кол-во жилых помещений: 71, Не присвоен, дом 4, корпус 2, нет, да, да, да, нет, нет, Имеется, Грузовых лифтов: 0, Год постройки: 1973, улица Молостовых, 37.831093, 55.764850
Свяжитесь со мной на счет цены
10 дн.
V55S764850L37S831093V

На карте


Условия сделки

Источник


Старт продаж

Возможно заинтересует