Top.Mail.Ru

шоссе Энтузиастов, д. 94, к. 4

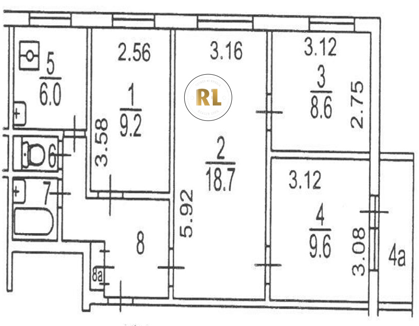
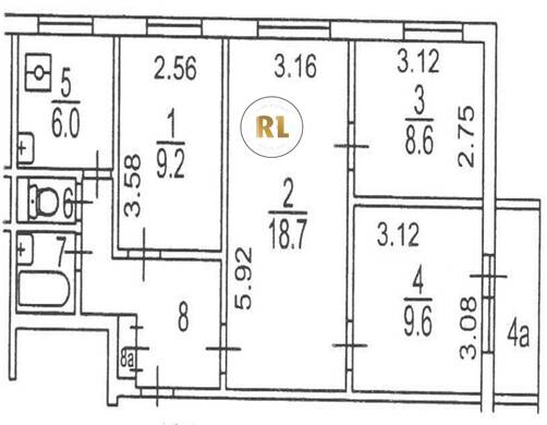
База каталог, Кол-во подъездов: 12, Имеется, II-49Д, Москва, Ивановское, Площадь парковки: 0, Пассажирский лифт: 12, От метро: 2180, Восточный, нет, Наименьшее кол-во этажей: 1, Наибольшее кол-во этажей: 9, Новогиреево, Кол-во помещений: 430, Кол-во нежилых помещений: 1, Год ввода в эксплуатацию: 1973, 4-комн, Кол-во жилых помещений: 429, Не присвоен, дом 94, корпус 4, нет, да, да, нет, нет, нет, Имеется, Грузовых лифтов: 0, Год постройки: 1973, шоссе Энтузиастов, 37.823969, 55.769803
Свяжитесь со мной на счет цены
10 дн.
V55S769803L37S823969V

На карте


Условия сделки

Источник


Старт продаж

Возможно заинтересует