Top.Mail.Ru

шоссе Энтузиастов, д. 96, к. 1

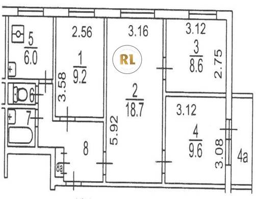
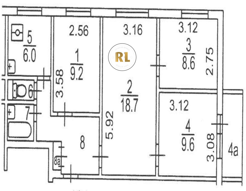
База каталог, Кол-во подъездов: 4, Имеется, II-49-04/Ю, Москва, Ивановское, Площадь парковки: 0, Пассажирский лифт: 4, От метро: 2700, Восточный, нет, Наименьшее кол-во этажей: 1, Наибольшее кол-во этажей: 9, Новогиреево, Кол-во помещений: 140, Кол-во нежилых помещений: 0, Год ввода в эксплуатацию: 1972, 4-комн, Кол-во жилых помещений: 140, Не присвоен, дом 96, корпус 1, нет, да, нет, нет, нет, нет, Имеется, Грузовых лифтов: 0, Год постройки: 1972, шоссе Энтузиастов, 37.829233, 55.772386
Свяжитесь со мной на счет цены
10 дн.
V55S772386L37S829233V

На карте


Условия сделки

Источник


Старт продаж

Возможно заинтересует