Top.Mail.Ru

Грузинский переулок, д. 14

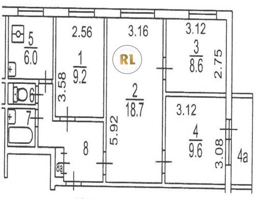
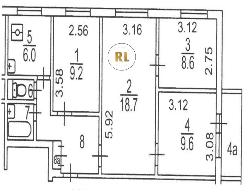
База каталог, Кол-во подъездов: 1, Имеется, II-49Д, Москва, Пресненский, Площадь парковки: 0, Пассажирский лифт: 1, От метро: 350, Центральный, нет, Наименьшее кол-во этажей: 8, Наибольшее кол-во этажей: 8, Белорусская, Кол-во помещений: 66, Кол-во нежилых помещений: 5, Год ввода в эксплуатацию: 1961, 4-комн, Кол-во жилых помещений: 61, Не присвоен, дом 14, да, да, да, да, да, да, Имеется, Грузовых лифтов: 0, Год постройки: 1961, Грузинский переулок, 37.580131, 55.773535
Свяжитесь со мной на счет цены
10 дн.
V55S773535L37S580131V

На карте


Условия сделки

Источник


Старт продаж

Возможно заинтересует