Top.Mail.Ru

Бакунинская ул., д. 32-36, к. 1

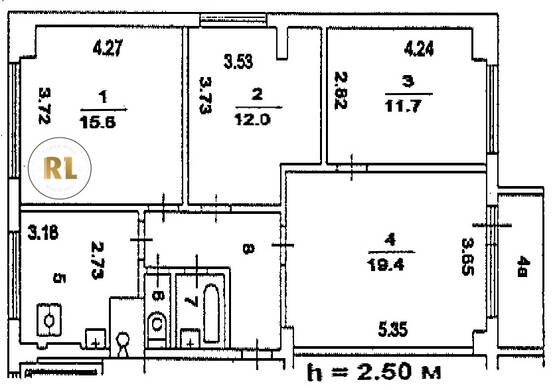
База каталог, Кол-во подъездов: 1, Отсутствует, 1-МГ-601, Москва, Басманный, Площадь парковки: 0, Пассажирский лифт: 1, От метро: 690, Центральный, нет, Наименьшее кол-во этажей: 1, Наибольшее кол-во этажей: 16, Бауманская, Кол-во помещений: 112, Кол-во нежилых помещений: 4, Год ввода в эксплуатацию: 1975, 4-комн, Кол-во жилых помещений: 108, Не присвоен, дом 32-36, корпус 1, нет, да, да, да, да, да, Отсутствует, Грузовых лифтов: 1, Год постройки: 1975, Бакунинская улица, 37.686240, 55.775368
Свяжитесь со мной на счет цены
10 дн.
V55S775368L37S686240V

На карте


Условия сделки

Источник


Старт продаж

Возможно заинтересует