Top.Mail.Ru

Большой Купавенский проезд, д. 8

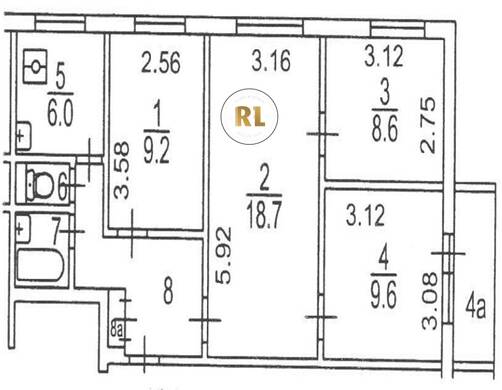
База каталог, Кол-во подъездов: 4, II-49Д, Москва, Ивановское, Площадь парковки: 0, Пассажирский лифт: 4, От метро: 2900, Восточный, нет, Наименьшее кол-во этажей: 9, Наибольшее кол-во этажей: 9, Первомайская, Кол-во помещений: 144, Кол-во нежилых помещений: 0, Год ввода в эксплуатацию: 1975, 4-комн, Кол-во жилых помещений: 144, Не присвоен, дом 8, нет, да, нет, нет, нет, нет, Отсутствует, Грузовых лифтов: 0, Год постройки: 1975, Большой Купавенский проезд, 37.820610, 55.776720
Свяжитесь со мной на счет цены
10 дн.
V55S776720L37S820610V

На карте


Условия сделки

Источник


Старт продаж

Возможно заинтересует