Top.Mail.Ru

поселок Рублево, Советская ул., д. 11

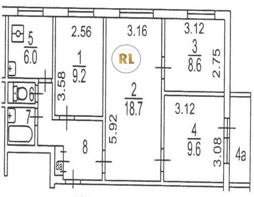
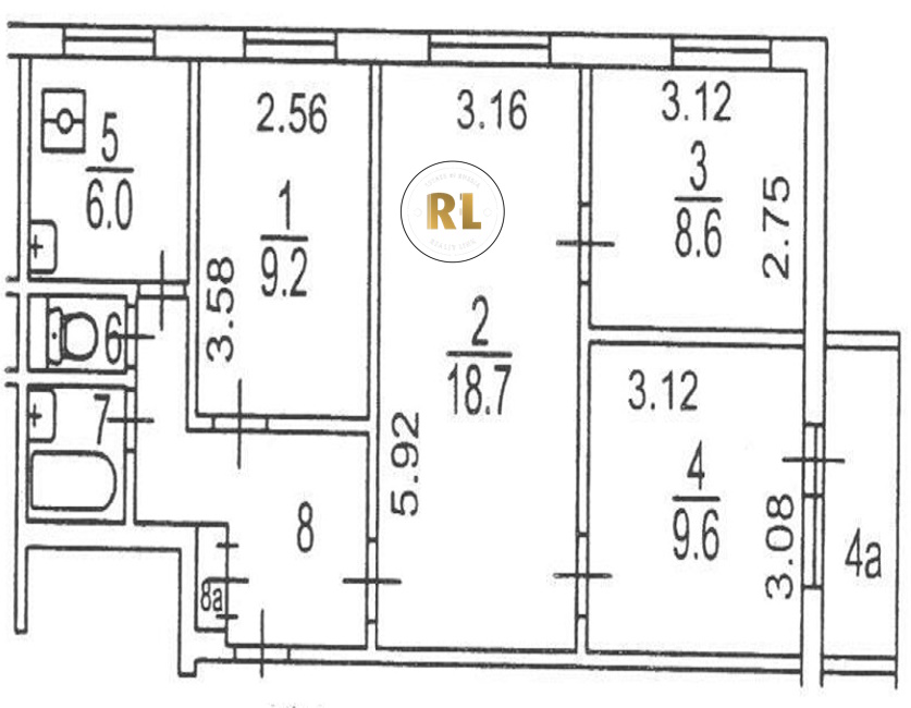
База каталог, Кол-во подъездов: 4, Имеется, II-49Д, Москва, Кунцево, Пассажирский лифт: 4, От метро: 4900, Западный, да, Наименьшее кол-во этажей: 9, Наибольшее кол-во этажей: 9, Строгино, Кол-во помещений: 0, Кол-во нежилых помещений: 0, Год ввода в эксплуатацию: 1979, 4-комн, Кол-во жилых помещений: 0, Не присвоен, дом 11, нет, нет, нет, нет, нет, нет, Имеется, Грузовых лифтов: 0, Год постройки: 1979, поселок Рублево, Советская улица, 37.355561, 55.783509
Свяжитесь со мной на счет цены
10 дн.
V55S783509L37S355561V

На карте


Условия сделки

Источник


Старт продаж

Возможно заинтересует