Top.Mail.Ru

2-я Новорублевская ул., д. 4

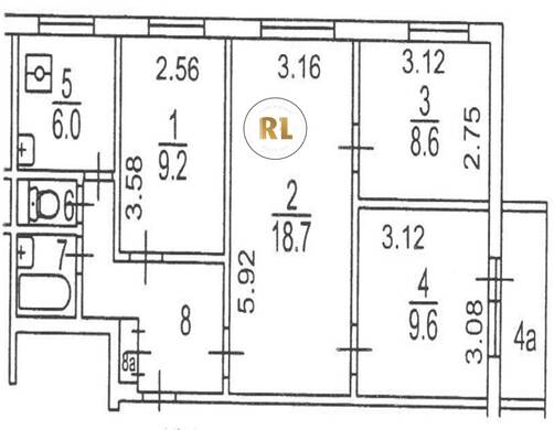
База каталог, Кол-во подъездов: 4, Отсутствует, II-49Д, Москва, Кунцево, Площадь парковки: 655, Пассажирский лифт: 4, От метро: 4800, Западный, да, Наименьшее кол-во этажей: 0, Наибольшее кол-во этажей: 9, Строгино, Кол-во помещений: 144, Кол-во нежилых помещений: 1, Год ввода в эксплуатацию: 1974, 4-комн, Кол-во жилых помещений: 143, Не присвоен, дом 4, нет, нет, нет, нет, нет, нет, Имеется, Грузовых лифтов: 0, Год постройки: 1974, 2-я Новорублевская улица, 37.360178, 55.785032
Свяжитесь со мной на счет цены
10 дн.
V55S785032L37S360178V

На карте


Условия сделки

Источник


Старт продаж

Возможно заинтересует