Top.Mail.Ru

улица Образцова, д. 24

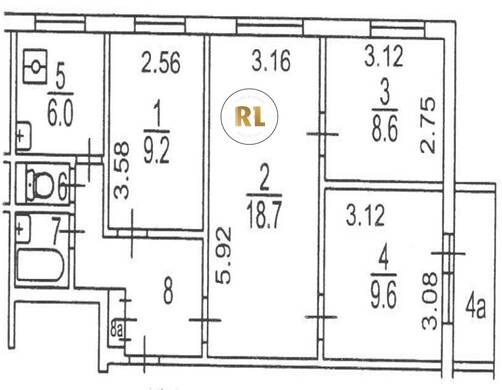
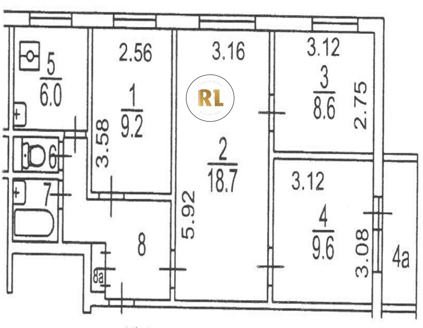
База каталог, Кол-во подъездов: 4, II-49Д, Москва, Марьина Роща, Площадь парковки: 0, Пассажирский лифт: 4, От метро: 740, Северо-Восточный, нет, Наименьшее кол-во этажей: 9, Наибольшее кол-во этажей: 9, Марьина Роща, Кол-во помещений: 143, Кол-во нежилых помещений: 2, Год ввода в эксплуатацию: 1970, 4-комн, Кол-во жилых помещений: 141, Не присвоен, дом 24, нет, да, да, да, да, да, Имеется, Грузовых лифтов: 0, Год постройки: 1970, улица Образцова, 37.610772, 55.789603
Свяжитесь со мной на счет цены
10 дн.
V55S789603L37S610772V

На карте


Условия сделки

Источник


Старт продаж

Возможно заинтересует