Top.Mail.Ru

Полковая ул., д. 20

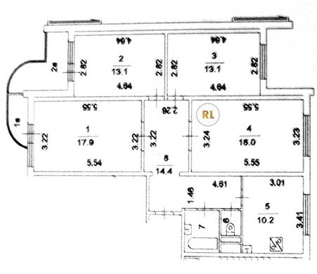
База каталог, Кол-во подъездов: 2, П-3M, Москва, Марьина Роща, Площадь парковки: 0, Пассажирский лифт: 2, От метро: 1040, Северо-Восточный, нет, Наименьшее кол-во этажей: 16, Наибольшее кол-во этажей: 16, Савёловская, Кол-во помещений: 125, Кол-во нежилых помещений: 2, Год ввода в эксплуатацию: 2002, 4-комн, Кол-во жилых помещений: 123, Не присвоен, дом 20, нет, да, да, да, да, да, Имеется, Грузовых лифтов: 2, Год постройки: 2002, Полковая улица, 37.600954, 55.797589
Свяжитесь со мной на счет цены
10 дн.
V55S797589L37S600954V

На карте


Условия сделки

Источник


Старт продаж

Возможно заинтересует