Top.Mail.Ru

Полтавская ул., д. 47, к. 2

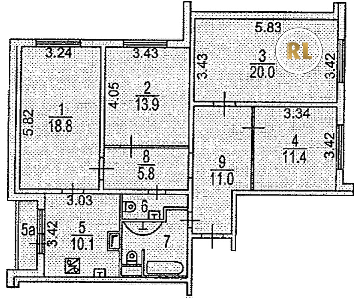
База каталог, Кол-во нежилых помещений: 0, КОПЭ, Москва, Савеловский, Пассажирский лифт: 6, От метро: 1240, Северный, да, Наименьшее кол-во этажей: 22, Наибольшее кол-во этажей: 22, Петровский парк, Кол-во помещений: 261, Кол-во подъездов: 3, 4-комн, Год ввода в эксплуатацию: 2002, Кол-во жилых помещений: 261, Не присвоен, дом 47, корпус 2, нет, да, да, да, да, нет, Имеется, Грузовых лифтов: 3, Год постройки: 2002, Полтавская улица, 37.570914, 55.798986
Свяжитесь со мной на счет цены
10 дн.
V55S798986L37S570914V

На карте


Условия сделки

Источник


Старт продаж

Возможно заинтересует