Top.Mail.Ru

Таллинская ул., д. 26

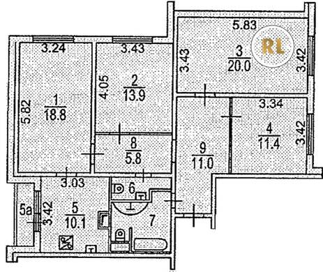
База каталог, Кол-во подъездов: 4, Отсутствует, КОПЭ, Москва, Строгино, Площадь парковки: 0, Пассажирский лифт: 12, От метро: 530, Северо-Западный, нет, Наименьшее кол-во этажей: 22, Наибольшее кол-во этажей: 22, Строгино, Кол-во помещений: 305, Кол-во нежилых помещений: 0, Год ввода в эксплуатацию: 1995, 4-комн, Кол-во жилых помещений: 305, Не присвоен, дом 26, да, да, да, да, да, да, Отсутствует, Грузовых лифтов: 0, Год постройки: 1995, Таллинская улица, 37.407627, 55.799881
Свяжитесь со мной на счет цены
10 дн.
V55S799881L37S407627V

На карте


Условия сделки

Источник


Старт продаж

Возможно заинтересует