Top.Mail.Ru

Таллинская ул., д. 19, к. 1

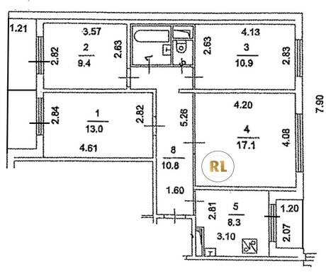
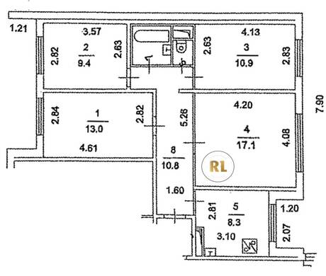
База каталог, Кол-во подъездов: 9, П-30, Москва, Строгино, Площадь парковки: 0, Пассажирский лифт: 18, От метро: 400, Северо-Западный, нет, Наименьшее кол-во этажей: 12, Наибольшее кол-во этажей: 12, Строгино, Кол-во помещений: 430, Кол-во нежилых помещений: 3, Год ввода в эксплуатацию: 1980, 4-комн, Кол-во жилых помещений: 427, E, дом 19, корпус 1, да, да, да, да, да, да, Грузовых лифтов: 0, Год постройки: 1980, Таллинская улица, 37.405417, 55.800332
Свяжитесь со мной на счет цены
10 дн.
V55S800332L37S405417V

На карте


Условия сделки

Источник


Старт продаж

Возможно заинтересует