Top.Mail.Ru

Таллинская ул., д. 32, к. 2

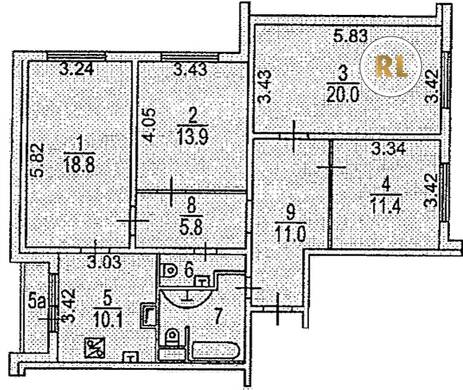
База каталог, Кол-во подъездов: 2, КОПЭ, Москва, Строгино, Площадь парковки: 0, Пассажирский лифт: 4, От метро: 350, Северо-Западный, нет, Наименьшее кол-во этажей: 22, Наибольшее кол-во этажей: 22, Строгино, Кол-во помещений: 178, Кол-во нежилых помещений: 4, Год ввода в эксплуатацию: 1986, 4-комн, Кол-во жилых помещений: 174, E, дом 32, корпус 2, да, да, да, да, да, да, Грузовых лифтов: 2, Год постройки: 1986, Таллинская улица, 37.409145, 55.801465
Свяжитесь со мной на счет цены
10 дн.
V55S801465L37S409145V

На карте


Условия сделки

Источник


Старт продаж

Возможно заинтересует