Top.Mail.Ru

Сиреневый бульвар, д. 71, к. 2

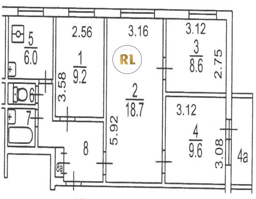
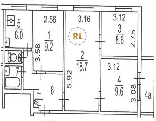
База каталог, Кол-во подъездов: 4, Отсутствует, II-49Д, Москва, Северное Измайлово, Пассажирский лифт: 4, От метро: 2340, Восточный, да, Наименьшее кол-во этажей: 9, Наибольшее кол-во этажей: 9, Щёлковская, Кол-во помещений: 144, Кол-во нежилых помещений: 2, Год ввода в эксплуатацию: 1967, 4-комн, Кол-во жилых помещений: 142, дом 71, корпус 2, нет, да, да, нет, нет, нет, Имеется, Грузовых лифтов: 0, Год постройки: 1967, Сиреневый бульвар, 37.826655, 55.804349
Свяжитесь со мной на счет цены
10 дн.
V55S804349L37S826655V

На карте


Условия сделки

Источник


Старт продаж

Возможно заинтересует