Top.Mail.Ru

Щелковское шоссе, д. 12, к. 2

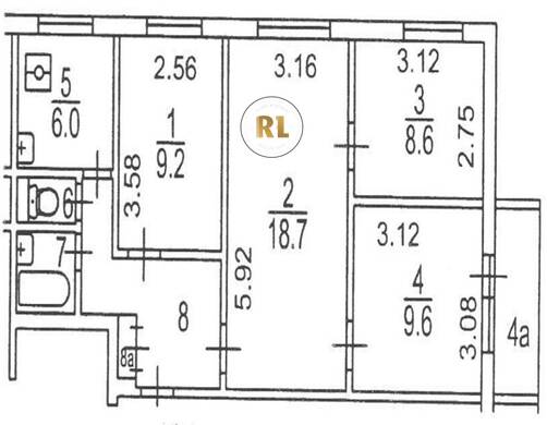
База каталог, Кол-во подъездов: 4, Имеется, II-49Д, Москва, Северное Измайлово, Пассажирский лифт: 4, От метро: 1760, Восточный, да, Наименьшее кол-во этажей: 9, Наибольшее кол-во этажей: 9, Локомотив, Кол-во помещений: 144, Кол-во нежилых помещений: 1, Год ввода в эксплуатацию: 1971, 4-комн, Кол-во жилых помещений: 143, дом 12, корпус 2, нет, да, да, да, нет, нет, Имеется, Грузовых лифтов: 0, Год постройки: 1971, Щелковское шоссе, 37.769531, 55.804688
Свяжитесь со мной на счет цены
10 дн.
V55S804688L37S769531V

На карте


Условия сделки

Источник


Старт продаж

Возможно заинтересует