Top.Mail.Ru

Никитинская ул., д. 31, к. 1

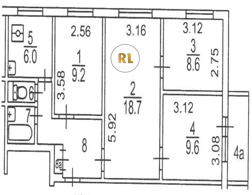
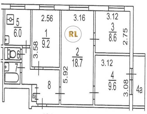
База каталог, Кол-во подъездов: 6, Отсутствует, II-49-06, Москва, Северное Измайлово, Пассажирский лифт: 6, От метро: 1910, Восточный, да, Наименьшее кол-во этажей: 9, Наибольшее кол-во этажей: 9, Локомотив, Кол-во помещений: 216, Кол-во нежилых помещений: 1, Год ввода в эксплуатацию: 1980, 4-комн, Кол-во жилых помещений: 215, E, дом 31, корпус 1, нет, да, да, да, нет, нет, Имеется, Грузовых лифтов: 0, Год постройки: 1980, Никитинская улица, 37.771580, 55.805149
Свяжитесь со мной на счет цены
10 дн.
V55S805149L37S771580V

На карте


Условия сделки

Источник


Старт продаж

Возможно заинтересует