Top.Mail.Ru

Строгинский бульвар, д. 13, к. 3

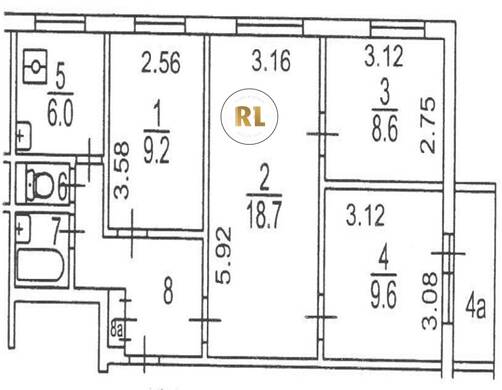
База каталог, Кол-во подъездов: 4, Отсутствует, II-49Д, Москва, Строгино, Площадь парковки: 0, Пассажирский лифт: 4, От метро: 249, Северо-Западный, нет, Наименьшее кол-во этажей: 9, Наибольшее кол-во этажей: 9, Строгино, Кол-во помещений: 143, Кол-во нежилых помещений: 0, Год ввода в эксплуатацию: 1979, 4-комн, Кол-во жилых помещений: 143, Не присвоен, дом 13, корпус 3, да, да, да, да, да, да, Имеется, Грузовых лифтов: 0, Год постройки: 1979, Строгинский бульвар, 37.403046, 55.806090
Свяжитесь со мной на счет цены
10 дн.
V55S806090L37S403046V

На карте


Условия сделки

Источник


Старт продаж

Возможно заинтересует