Top.Mail.Ru

Просторная ул., д. 15, к. 2

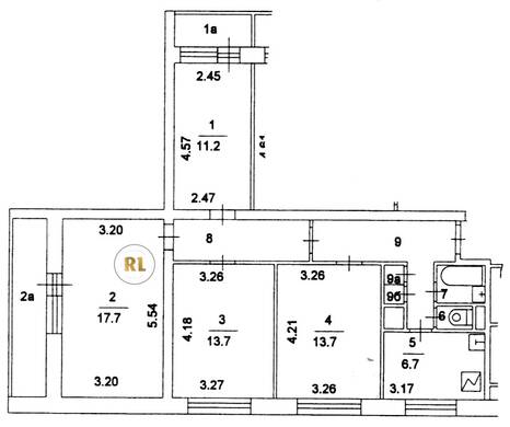
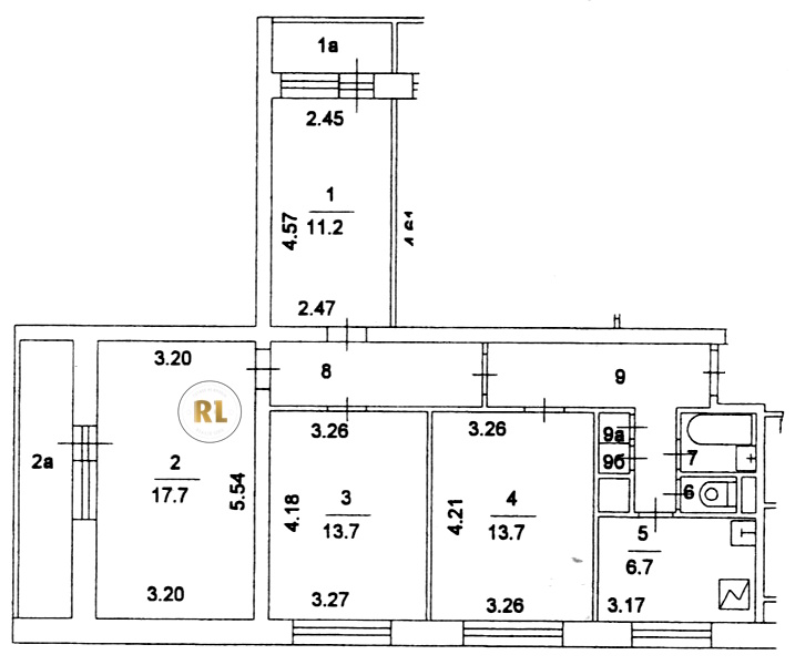
База каталог, Кол-во подъездов: 4, I605-АМ, Москва, Богородское, Площадь парковки: 0, Пассажирский лифт: 0, От метро: 1010, Восточный, нет, Наименьшее кол-во этажей: 0, Наибольшее кол-во этажей: 5, Бульвар Рокоссовского, Кол-во помещений: 80, Кол-во нежилых помещений: 0, Год ввода в эксплуатацию: 1960, 4-комн, Кол-во жилых помещений: 80, В, дом 15, корпус 2, нет, да, да, да, да, да, Грузовых лифтов: 0, Год постройки: 1960, Просторная улица, 37.723735, 55.807481
Свяжитесь со мной на счет цены
10 дн.
V55S807481L37S723735V

На карте


Условия сделки

Источник


Старт продаж

Возможно заинтересует