Top.Mail.Ru

Неманский проезд, д. 11

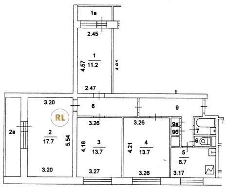
База каталог, Кол-во подъездов: 18, Отсутствует, II-68, Москва, Строгино, Площадь парковки: 0, Пассажирский лифт: 36, От метро: 900, Северо-Западный, нет, Наименьшее кол-во этажей: 12, Наибольшее кол-во этажей: 12, Строгино, Кол-во помещений: 860, Кол-во нежилых помещений: 0, Год ввода в эксплуатацию: 1979, 4-комн, Кол-во жилых помещений: 860, Не присвоен, дом 11, нет, да, да, да, да, да, Имеется, Грузовых лифтов: 0, Год постройки: 1979, Неманский проезд, 37.392302, 55.809762
Свяжитесь со мной на счет цены
10 дн.
V55S809762L37S392302V

На карте


Условия сделки

Источник


Старт продаж

Возможно заинтересует