Top.Mail.Ru

улица Исаковского, д. 12, к. 2

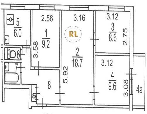
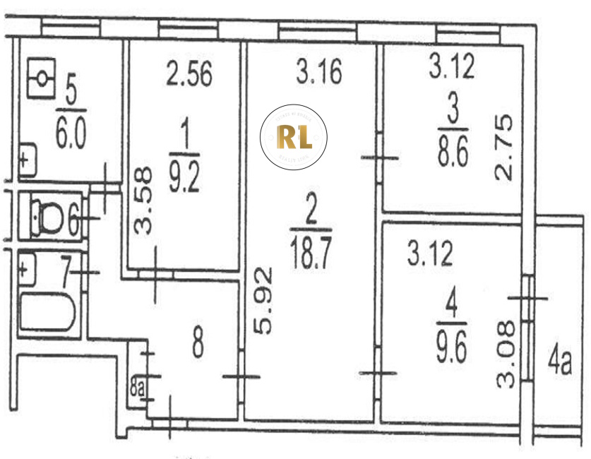
База каталог, Кол-во подъездов: 6, Отсутствует, II-49Д, Москва, Строгино, Площадь парковки: 0, Пассажирский лифт: 6, От метро: 1430, Северо-Западный, нет, Наименьшее кол-во этажей: 9, Наибольшее кол-во этажей: 9, Строгино, Кол-во помещений: 215, Кол-во нежилых помещений: 0, Год ввода в эксплуатацию: 1979, 4-комн, Кол-во жилых помещений: 215, Не присвоен, дом 12, корпус 2, нет, да, да, да, да, нет, Имеется, Грузовых лифтов: 0, Год постройки: 1979, улица Исаковского, 37.406091, 55.813658
Свяжитесь со мной на счет цены
10 дн.
V55S813658L37S406091V

На карте


Условия сделки

Источник


Старт продаж

Возможно заинтересует