Top.Mail.Ru

улица Габричевского, д. 8, к. 2

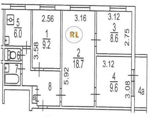
База каталог, Кол-во подъездов: 4, Имеется, II-49Д, Москва, Покровское-Стрешнево, Площадь парковки: 0, Пассажирский лифт: 4, От метро: 970, Северо-Западный, нет, Наименьшее кол-во этажей: 1, Наибольшее кол-во этажей: 9, Щукинская, Кол-во помещений: 144, Кол-во нежилых помещений: 1, Год ввода в эксплуатацию: 1979, 4-комн, Кол-во жилых помещений: 143, Не присвоен, дом 8, корпус 2, нет, да, да, да, да, да, Имеется, Грузовых лифтов: 0, Год постройки: 1979, улица Габричевского, 37.460062, 55.815640
Свяжитесь со мной на счет цены
10 дн.
V55S815640L37S460062V

На карте


Условия сделки

Источник


Старт продаж

Возможно заинтересует