Top.Mail.Ru

Миллионная ул., д. 14

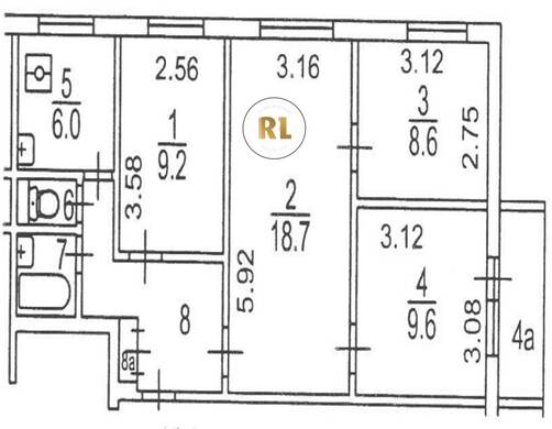
База каталог, Кол-во подъездов: 4, II-49Д, Москва, Богородское, Площадь парковки: 0, Пассажирский лифт: 4, От метро: 1840, Восточный, нет, Наименьшее кол-во этажей: 0, Наибольшее кол-во этажей: 9, Белокаменная, Кол-во помещений: 143, Кол-во нежилых помещений: 0, Год ввода в эксплуатацию: 1974, 4-комн, Кол-во жилых помещений: 143, В, дом 14, нет, да, да, да, нет, нет, Имеется, Грузовых лифтов: 0, Год постройки: 1974, Миллионная улица, 37.700999, 55.815944
Свяжитесь со мной на счет цены
10 дн.
V55S815944L37S700999V

На карте


Условия сделки

Источник


Старт продаж

Возможно заинтересует