Top.Mail.Ru

бульвар Маршала Рокоссовского, д. 33/12

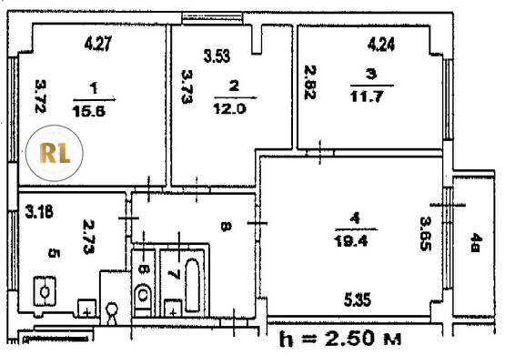
База каталог, Кол-во подъездов: 4, IМГ-601Д, Москва, Богородское, Площадь парковки: 0, Пассажирский лифт: 4, От метро: 1360, Восточный, нет, Наименьшее кол-во этажей: 0, Наибольшее кол-во этажей: 9, Бульвар Рокоссовского, Кол-во помещений: 129, Кол-во нежилых помещений: 1, Год ввода в эксплуатацию: 1967, 4-комн, Кол-во жилых помещений: 128, В, дом 33/12, нет, да, да, да, да, нет, Грузовых лифтов: 0, Год постройки: 1967, бульвар Маршала Рокоссовского, 37.714528, 55.816520
Свяжитесь со мной на счет цены
10 дн.
V55S816520L37S714528V

На карте


Условия сделки

Источник


Старт продаж

Возможно заинтересует