Top.Mail.Ru

Алтайская ул., д. 29

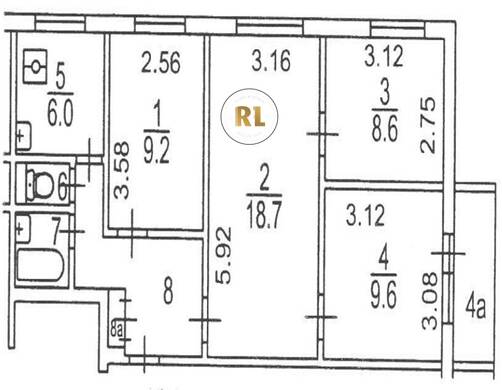
База каталог, Кол-во подъездов: 6, II-49-06, Москва, Гольяново, Площадь парковки: 0, Пассажирский лифт: 6, От метро: 2900, Восточный, нет, Наименьшее кол-во этажей: 0, Наибольшее кол-во этажей: 9, Щёлковская, Кол-во помещений: 215, Кол-во нежилых помещений: 1, Год ввода в эксплуатацию: 1973, 4-комн, Кол-во жилых помещений: 214, дом 29, нет, да, нет, нет, нет, нет, Имеется, Грузовых лифтов: 0, Год постройки: 1973, Алтайская улица, 37.829880, 55.821189
Свяжитесь со мной на счет цены
10 дн.
V55S821189L37S829880V

На карте


Условия сделки

Источник


Старт продаж

Возможно заинтересует