Top.Mail.Ru

Алтайская ул., д. 31

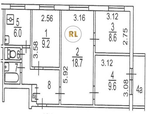
База каталог, Кол-во подъездов: 6, II-49, Москва, Гольяново, Пассажирский лифт: 6, От метро: 2960, Восточный, да, Наименьшее кол-во этажей: 9, Наибольшее кол-во этажей: 9, Щёлковская, Кол-во помещений: 216, Кол-во нежилых помещений: 0, Год ввода в эксплуатацию: 1973, 4-комн, Кол-во жилых помещений: 216, дом 31, нет, да, нет, нет, нет, нет, Грузовых лифтов: 0, Год постройки: 1973, Алтайская улица, 37.830841, 55.821219
Свяжитесь со мной на счет цены
10 дн.
V55S821219L37S830841V

На карте


Условия сделки

Источник


Старт продаж

Возможно заинтересует