Top.Mail.Ru

Хабаровская ул., д. 14, к. 2

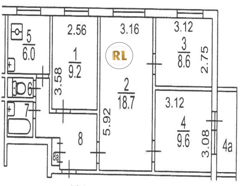
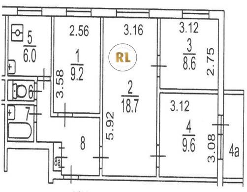
База каталог, Кол-во помещений: 287, II-49-08М, Москва, Гольяново, Площадь парковки: 0, Пассажирский лифт: 8, От метро: 3000, Восточный, нет, Наименьшее кол-во этажей: 0, Наибольшее кол-во этажей: 9, Щёлковская, Кол-во подъездов: 8, Год ввода в эксплуатацию: 1973, Кол-во нежилых помещений: 0, 4-комн, Кол-во жилых помещений: 287, дом 14, корпус 2, нет, да, нет, нет, нет, нет, Грузовых лифтов: 0, Год постройки: 1973, Хабаровская улица, 37.828524, 55.823181
Свяжитесь со мной на счет цены
10 дн.
V55S823181L37S828524V

На карте


Условия сделки

Источник


Старт продаж

Возможно заинтересует