Top.Mail.Ru

Уссурийская ул., д. 1, к. 4

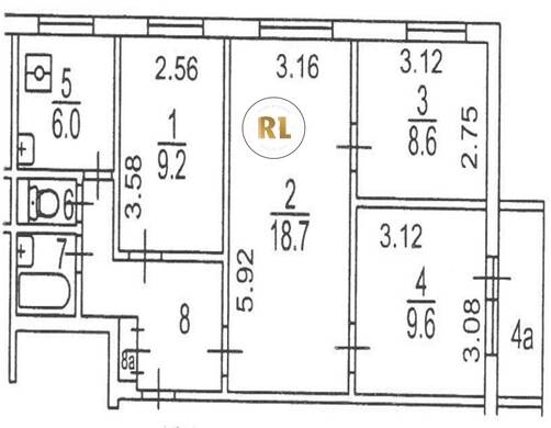
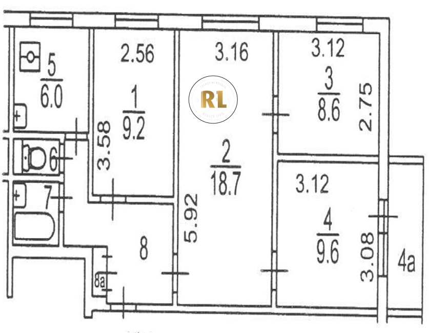
База каталог, Кол-во подъездов: 4, II-49Д, Москва, Гольяново, Площадь парковки: 0, Пассажирский лифт: 4, От метро: 2230, Восточный, нет, Наименьшее кол-во этажей: 0, Наибольшее кол-во этажей: 9, Щёлковская, Кол-во помещений: 144, Кол-во нежилых помещений: 0, Год ввода в эксплуатацию: 1973, 4-комн, Кол-во жилых помещений: 144, дом 1, корпус 4, нет, да, да, нет, нет, нет, Имеется, Грузовых лифтов: 0, Год постройки: 1973, Уссурийская улица, 37.810351, 55.824551
Свяжитесь со мной на счет цены
10 дн.
V55S824551L37S810351V

На карте


Условия сделки

Источник


Старт продаж

Возможно заинтересует