Top.Mail.Ru

улица Милашенкова, д. 10

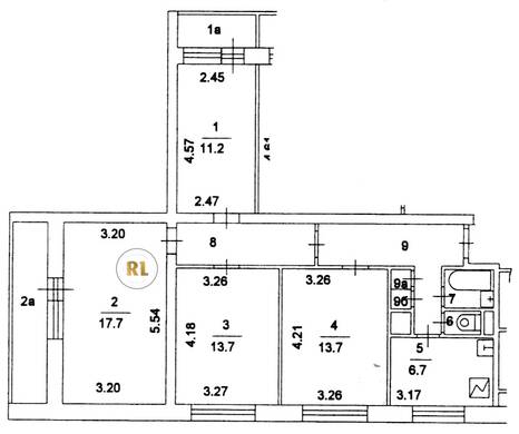
База каталог, Кол-во подъездов: 8, Отсутствует, I605-АМ, Москва, Бутырский, Площадь парковки: 0, Пассажирский лифт: 16, От метро: 420, Северо-Восточный, нет, Наименьшее кол-во этажей: 12, Наибольшее кол-во этажей: 12, Фонвизинская, Кол-во помещений: 386, Кол-во нежилых помещений: 22, Год ввода в эксплуатацию: 1980, 4-комн, Кол-во жилых помещений: 364, E, дом 10, да, да, да, да, да, да, Имеется, Грузовых лифтов: 0, Год постройки: 1980, улица Милашенкова, 37.582556, 55.826620
Свяжитесь со мной на счет цены
10 дн.
V55S826620L37S582556V

На карте


Условия сделки

Источник


Старт продаж

Возможно заинтересует