Top.Mail.Ru

Малахитовая ул., д. 13, к. 1

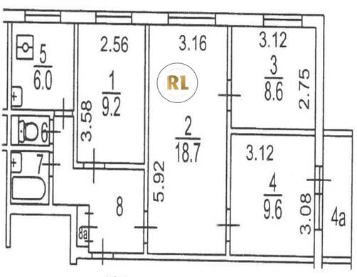
База каталог, Кол-во подъездов: 10, II-49Д, Москва, Ростокино, Площадь парковки: 450, Пассажирский лифт: 10, От метро: 1290, Северо-Восточный, да, Наименьшее кол-во этажей: 9, Наибольшее кол-во этажей: 9, Ростокино, Кол-во помещений: 355, Кол-во нежилых помещений: 0, Год ввода в эксплуатацию: 1970, 4-комн, Кол-во жилых помещений: 355, E, дом 13, корпус 1, нет, да, да, да, да, нет, Грузовых лифтов: 0, Год постройки: 1970, Малахитовая улица, 37.662838, 55.831145
Свяжитесь со мной на счет цены
10 дн.
V55S831145L37S662838V

На карте


Условия сделки

Источник


Старт продаж

Возможно заинтересует