Top.Mail.Ru

Коптевский бульвар, д. 21

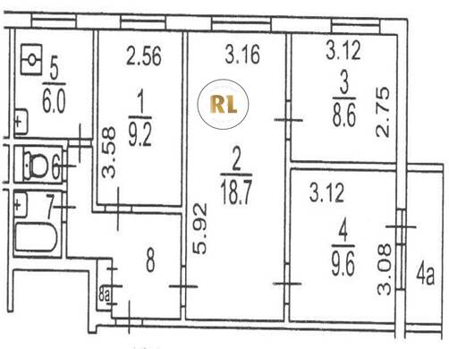
База каталог, Кол-во подъездов: 1, II-49-12, Москва, Коптево, Площадь парковки: 0, Пассажирский лифт: 2, От метро: 1050, Северный, нет, Наименьшее кол-во этажей: 12, Наибольшее кол-во этажей: 12, Коптево, Кол-во помещений: 82, Кол-во нежилых помещений: 2, Год ввода в эксплуатацию: 1969, 4-комн, Кол-во жилых помещений: 80, В, дом 21, нет, да, да, да, да, да, Грузовых лифтов: 0, Год постройки: 1969, Коптевский бульвар, 37.520932, 55.831752
Свяжитесь со мной на счет цены
10 дн.
V55S831752L37S520932V

На карте


Условия сделки

Источник


Старт продаж

Возможно заинтересует