Top.Mail.Ru

Митинская ул., д. 15

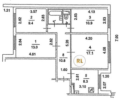
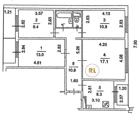
База каталог, Кол-во подъездов: 8, Отсутствует, П-30, Москва, Митино, Площадь парковки: 0, Пассажирский лифт: 8, От метро: 530, Северо-Западный, нет, Наименьшее кол-во этажей: 4, Наибольшее кол-во этажей: 9, Митино, Кол-во помещений: 169, Кол-во нежилых помещений: 10, Год ввода в эксплуатацию: 1996, 4-комн, Кол-во жилых помещений: 159, Не присвоен, дом 15, да, да, да, да, да, да, Имеется, Грузовых лифтов: 4, Год постройки: 1996, Митинская улица, 37.369565, 55.841918
Свяжитесь со мной на счет цены
10 дн.
V55S841918L37S369565V

На карте


Условия сделки

Источник


Старт продаж

Возможно заинтересует