Top.Mail.Ru

Дубравная ул., д. 44

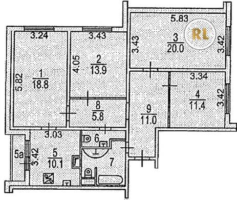
База каталог, Кол-во подъездов: 2, КОПЭ, Москва, Митино, Пассажирский лифт: 4, От метро: 700, Северо-Западный, да, Наименьшее кол-во этажей: 22, Наибольшее кол-во этажей: 22, Митино, Кол-во помещений: 0, Кол-во нежилых помещений: 0, Год ввода в эксплуатацию: 1999, 4-комн, Кол-во жилых помещений: 0, дом 44, нет, да, да, да, да, да, Грузовых лифтов: 2, Год постройки: 1999, Дубравная улица, 37.352174, 55.841923
Свяжитесь со мной на счет цены
10 дн.
V55S841923L37S352174V

На карте


Условия сделки

Источник


Старт продаж

Возможно заинтересует