Top.Mail.Ru

проезд Черепановых, д. 64, к. 1

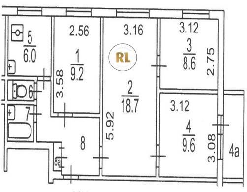
База каталог, Кол-во подъездов: 8, II-49Д, Москва, Коптево, Площадь парковки: 0, Пассажирский лифт: 8, От метро: 480, Северный, нет, Наименьшее кол-во этажей: 9, Наибольшее кол-во этажей: 9, Лихоборы, Кол-во помещений: 287, Кол-во нежилых помещений: 0, Год ввода в эксплуатацию: 1967, 4-комн, Кол-во жилых помещений: 287, E, дом 64, корпус 1, да, да, да, да, да, да, Грузовых лифтов: 0, Год постройки: 1967, проезд Черепановых, 37.548339, 55.844612
Свяжитесь со мной на счет цены
10 дн.
V55S844612L37S548339V

На карте


Условия сделки

Источник


Старт продаж

Возможно заинтересует