Top.Mail.Ru

улица Барышиха, д. 25, к. 5

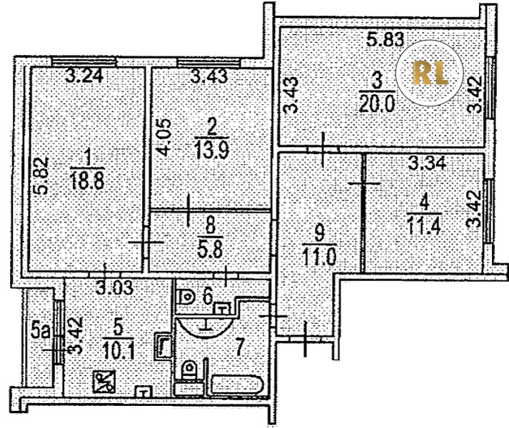
База каталог, Кол-во подъездов: 2, Отсутствует, КОПЭ, Москва, Митино, Площадь парковки: 0, Пассажирский лифт: 4, От метро: 1420, Северо-Западный, нет, Наименьшее кол-во этажей: 22, Наибольшее кол-во этажей: 22, Митино, Кол-во помещений: 175, Кол-во нежилых помещений: 1, Год ввода в эксплуатацию: 1999, 4-комн, Кол-во жилых помещений: 174, Не присвоен, дом 25, корпус 5, нет, да, да, да, да, нет, Имеется, Грузовых лифтов: 2, Год постройки: 1999, улица Барышиха, 37.340676, 55.845203
Свяжитесь со мной на счет цены
10 дн.
V55S845203L37S340676V

На карте


Условия сделки

Источник


Старт продаж

Возможно заинтересует