Top.Mail.Ru

Митинская ул., д. 40, к. 1

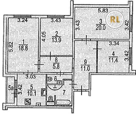
База каталог, Кол-во помещений: 336, КОПЭ, Москва, Митино, Площадь парковки: 0, Пассажирский лифт: 8, От метро: 186, Северо-Западный, нет, Наименьшее кол-во этажей: 22, Наибольшее кол-во этажей: 22, Митино, Кол-во подъездов: 4, Год ввода в эксплуатацию: 1992, Кол-во нежилых помещений: 0, 4-комн, Кол-во жилых помещений: 336, дом 40, корпус 1, да, да, да, да, да, да, Грузовых лифтов: 4, Год постройки: 1992, Митинская улица, 37.361517, 55.847993
Свяжитесь со мной на счет цены
10 дн.
V55S847993L37S361517V

На карте


Условия сделки

Источник


Старт продаж

Возможно заинтересует