Top.Mail.Ru

улица Барышиха, д. 32, к. 1

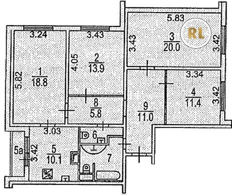
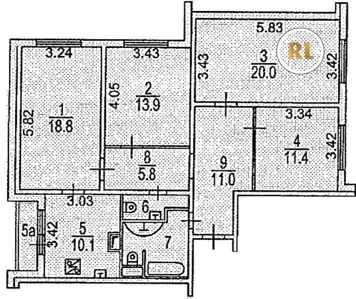
База каталог, Кол-во подъездов: 2, Имеется, КОПЭ, Москва, Митино, Площадь парковки: 0, Пассажирский лифт: 4, От метро: 940, Северо-Западный, нет, Наименьшее кол-во этажей: 22, Наибольшее кол-во этажей: 22, Митино, Кол-во помещений: 174, Кол-во нежилых помещений: 2, Год ввода в эксплуатацию: 1994, 4-комн, Кол-во жилых помещений: 172, Не присвоен, дом 32, корпус 1, нет, да, да, да, да, да, Имеется, Грузовых лифтов: 2, Год постройки: 1994, улица Барышиха, 37.347135, 55.849115
Свяжитесь со мной на счет цены
10 дн.
V55S849115L37S347135V

На карте


Условия сделки

Источник


Старт продаж

Возможно заинтересует