Top.Mail.Ru

улица Лавочкина, д. 6, к. 2

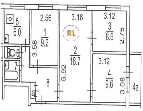
База каталог, Кол-во подъездов: 4, II-49Д, Москва, Головинский, Площадь парковки: 0, Пассажирский лифт: 4, От метро: 1850, Северный, нет, Наименьшее кол-во этажей: 9, Наибольшее кол-во этажей: 9, Коптево, Кол-во помещений: 143, Кол-во нежилых помещений: 0, Год ввода в эксплуатацию: 1969, 4-комн, Кол-во жилых помещений: 143, Не присвоен, дом 6, корпус 2, нет, да, да, да, нет, нет, Грузовых лифтов: 0, Год постройки: 1969, улица Лавочкина, 37.504259, 55.851505
Свяжитесь со мной на счет цены
10 дн.
V55S851505L37S504259V

На карте


Условия сделки

Источник


Старт продаж

Возможно заинтересует