Top.Mail.Ru

Туристская ул., д. 14, к. 4

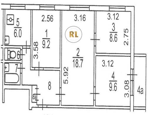
База каталог, Кол-во подъездов: 6, II-49Д, Москва, Северное Тушино, Площадь парковки: 0, Пассажирский лифт: 6, От метро: 1080, Северо-Западный, нет, Наименьшее кол-во этажей: 9, Наибольшее кол-во этажей: 9, Сходненская, Кол-во помещений: 215, Кол-во нежилых помещений: 0, Год ввода в эксплуатацию: 1967, 4-комн, Кол-во жилых помещений: 215, Не присвоен, дом 14, корпус 4, нет, да, да, да, да, да, Имеется, Грузовых лифтов: 0, Год постройки: 1967, Туристская улица, 37.425944, 55.853723
Свяжитесь со мной на счет цены
10 дн.
V55S853723L37S425944V

На карте


Условия сделки

Источник


Старт продаж

Возможно заинтересует