Top.Mail.Ru

улица Свободы, д. 63

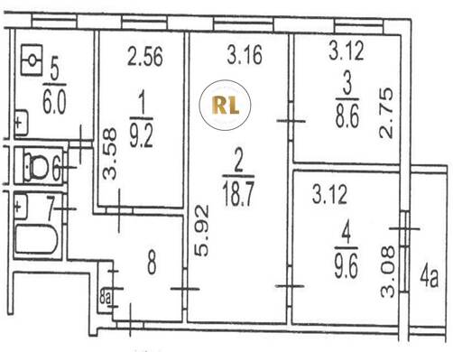
База каталог, Кол-во подъездов: 12, Имеется, II-49Д, Москва, Северное Тушино, Площадь парковки: 0, Пассажирский лифт: 12, От метро: 740, Северо-Западный, нет, Наименьшее кол-во этажей: 12, Наибольшее кол-во этажей: 12, Сходненская, Кол-во помещений: 574, Кол-во нежилых помещений: 0, Год ввода в эксплуатацию: 1970, 4-комн, Кол-во жилых помещений: 574, Не присвоен, дом 63, нет, да, да, да, да, да, Имеется, Грузовых лифтов: 0, Год постройки: 1970, улица Свободы, 37.448968, 55.854643
Свяжитесь со мной на счет цены
10 дн.
V55S854643L37S448968V

На карте


Условия сделки

Источник


Старт продаж

Возможно заинтересует