Top.Mail.Ru

улица Ляпидевского, д. 6, к. 3

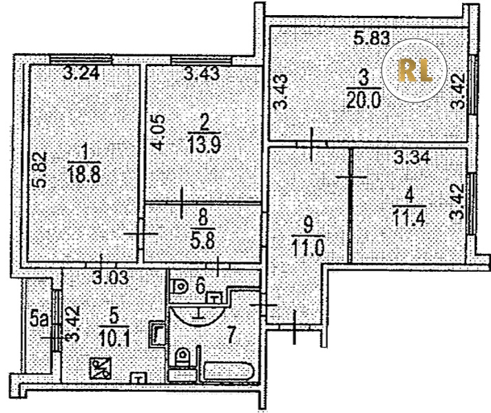
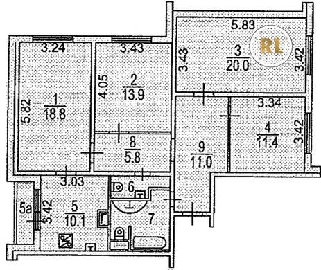
База каталог, Кол-во подъездов: 2, Отсутствует, КОПЭ, Москва, Ховрино, Площадь парковки: 0, Пассажирский лифт: 4, От метро: 1880, Северный, нет, Наименьшее кол-во этажей: 22, Наибольшее кол-во этажей: 22, Речной вокзал, Кол-во помещений: 176, Кол-во нежилых помещений: 2, Год ввода в эксплуатацию: 2000, 4-комн, Кол-во жилых помещений: 174, D, дом 6, корпус 3, нет, да, да, да, нет, нет, Имеется, Грузовых лифтов: 2, Год постройки: 2000, улица Ляпидевского, 37.500935, 55.856598
Свяжитесь со мной на счет цены
10 дн.
V55S856598L37S500935V

На карте


Условия сделки

Источник


Старт продаж

Возможно заинтересует