Top.Mail.Ru

улица Вилиса Лациса, д. 41

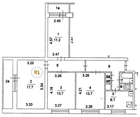
База каталог, Кол-во подъездов: 4, I605-АМ, Москва, Северное Тушино, Площадь парковки: 0, Пассажирский лифт: 8, От метро: 2060, Северо-Западный, нет, Наименьшее кол-во этажей: 12, Наибольшее кол-во этажей: 12, Планерная, Кол-во помещений: 181, Кол-во нежилых помещений: 1, Год ввода в эксплуатацию: 1980, 4-комн, Кол-во жилых помещений: 180, Не присвоен, дом 41, нет, да, да, да, нет, нет, Имеется, Грузовых лифтов: 0, Год постройки: 1980, улица Вилиса Лациса, 37.407438, 55.857422
Свяжитесь со мной на счет цены
10 дн.
V55S857422L37S407438V

На карте


Условия сделки

Источник


Старт продаж

Возможно заинтересует