Top.Mail.Ru

улица Ляпидевского, д. 10, к. 2

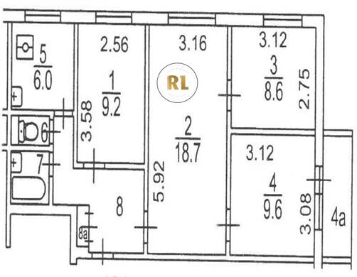
База каталог, Кол-во подъездов: 6, II-49Д, Москва, Ховрино, Площадь парковки: 0, Пассажирский лифт: 6, От метро: 1700, Северный, нет, Наименьшее кол-во этажей: 9, Наибольшее кол-во этажей: 9, Речной вокзал, Кол-во помещений: 269, Кол-во нежилых помещений: 54, Год ввода в эксплуатацию: 1967, 4-комн, Кол-во жилых помещений: 215, E, дом 10, корпус 2, нет, да, да, да, нет, нет, Имеется, Грузовых лифтов: 0, Год постройки: 1967, улица Ляпидевского, 37.497539, 55.857705
Свяжитесь со мной на счет цены
10 дн.
V55S857705L37S497539V

На карте


Условия сделки

Источник


Старт продаж

Возможно заинтересует